Nam Thanh Apartment là dự án căn hộ mini được thiết kế thông minh trên lô đất góc hẹp với diện tích 4,5m x 40m, mang đến giải pháp khai thác hiệu quả, kết hợp giữa không gian sống hiện đại và cơ hội kinh doanh bền vững. Với sự đồng hành của Archiheart Studio qua dịch vụ thiết kế phối cảnh 3D và tư vấn thiết kế, dự án không chỉ biến lô đất hạn chế về mặt bằng thành một tòa căn hộ đa năng mà còn tạo ra nguồn thu nhập thụ động và giá trị gia tăng lâu dài cho chủ đầu tư.
Nam Thanh Apartment được phát triển với mục tiêu tối ưu hóa không gian trên lô đất góc hẹp, biến thách thức về diện tích thành cơ hội đầu tư sinh lời. Công trình cao 6 tầng, bao gồm 28 căn hộ mini và mặt bằng kinh doanh cho thuê, được thiết kế để đáp ứng nhu cầu ở, làm việc và đầu tư. Dự án không chỉ mang lại không gian sống tiện nghi mà còn là giải pháp lý tưởng cho các nhà đầu tư muốn tạo nguồn thu nhập thụ động thông qua cho thuê căn hộ và mặt bằng thương mại.
Dự án nổi bật với thiết kế hiện đại, tối ưu hóa ánh sáng và thông gió tự nhiên, mang lại môi trường sống thoải mái và tiết kiệm năng lượng. Nam Thanh Apartment là minh chứng cho sự sáng tạo của Archiheart Studio trong việc biến những lô đất hạn chế thành các công trình giá trị cao.
Nam Thanh Apartment được xây dựng trên lô đất góc hẹp với kích thước 4,5m x 40m, một vị trí mang nhiều lợi thế nhờ đặc điểm lô góc:
-Tầm nhìn thoáng: Lô góc giúp công trình tiếp cận ánh sáng và không khí tự nhiên từ hai mặt, tạo cảm giác rộng rãi và thoải mái cho cư dân.
-Khả năng kinh doanh cao: Mặt tiền lô góc lý tưởng để bố trí mặt bằng thương mại, thu hút khách thuê mở cửa hàng, quán cà phê hoặc văn phòng.
-Kết nối thuận tiện: Vị trí lô góc thường nằm tại các khu vực giao thông nhộn nhịp, dễ dàng tiếp cận các tiện ích như chợ, trường học, bệnh viện và khu thương mại.
Mặc dù diện tích lô đất hạn chế, thiết kế thông minh của dự án đã tận dụng tối đa không gian để mang lại giá trị sử dụng vượt trội, phù hợp với nhu cầu của các gia đình trẻ, nhân viên văn phòng hoặc nhà đầu tư cho thuê.






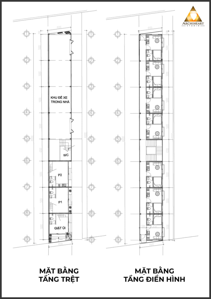
Nam Thanh Apartment được thiết kế với 6 tầng, bao gồm các hạng mục chính:
-28 căn hộ mini
+Các căn hộ được bố trí khoa học trên các tầng, với diện tích tối ưu, phù hợp cho nhu cầu ở của các cá nhân, cặp đôi hoặc gia đình nhỏ.
+Thiết kế hiện đại, tích hợp đầy đủ tiện ích như phòng ngủ, bếp, phòng tắm và khu vực sinh hoạt chung, mang lại không gian sống tiện nghi và thoải mái.
+Tối ưu hóa ánh sáng tự nhiên và thông gió, giúp tiết kiệm năng lượng và tạo môi trường sống trong lành.
-Mặt bằng kinh doanh cho thuê
+Tầng trệt được thiết kế làm mặt bằng thương mại, lý tưởng để kinh doanh cửa hàng, quán ăn, cà phê hoặc văn phòng.
+Vị trí lô góc giúp mặt bằng thu hút khách hàng, đảm bảo tiềm năng sinh lời cao từ việc cho thuê.
-Hạ tầng kỹ thuật đồng bộ
+Hệ thống điện, nước, phòng cháy chữa cháy và thang máy hiện đại, đảm bảo an toàn và tiện nghi cho cư dân.
+Các khu vực chung như hành lang, cầu thang được thiết kế rộng rãi, tạo cảm giác thoải mái và thẩm mỹ.
Nam Thanh Apartment mang lại nhiều lợi ích vượt trội cho chủ đầu tư và cư dân:
-Tối ưu hóa không gian: Biến lô đất hẹp thành một công trình đa năng, kết hợp ở và kinh doanh, tận dụng tối đa giá trị sử dụng của diện tích hạn chế.
-Nguồn thu nhập thụ động: Với 28 căn hộ mini và mặt bằng thương mại, dự án tạo ra dòng tiền ổn định từ việc cho thuê, phù hợp với các nhà đầu tư tìm kiếm lợi nhuận dài hạn.
-Giá trị gia tăng bền vững: Thiết kế hiện đại và vị trí lô góc giúp công trình tăng giá trị theo thời gian, đặc biệt trong bối cảnh nhu cầu nhà ở và mặt bằng kinh doanh tại các đô thị ngày càng cao.
-Không gian sống tiện nghi: Các căn hộ mini đáp ứng nhu cầu của nhóm cư dân trẻ, năng động, cần không gian sống nhỏ gọn nhưng đầy đủ tiện ích.
Các bản phối cảnh 3D do studio thực hiện tái hiện sống động tòa căn hộ với mặt tiền hiện đại, các căn hộ mini gọn gàng và mặt bằng kinh doanh nhộn nhịp. Những hình ảnh này không chỉ giúp chủ đầu tư hình dung rõ nét về dự án mà còn làm tăng sức hút đối với khách hàng và nhà đầu tư.
Sự sáng tạo của Archiheart Studio trong dịch vụ thiết kế phối cảnh 3D và tư vấn thiết kế nằm ở cách tận dụng không gian hẹp để tạo ra một công trình vừa thẩm mỹ, vừa thực dụng, đáp ứng nhu cầu đa dạng của thị trường bất động sản đô thị.


Đơn vị chuyên nghiệp về:
• Thiết kế Phối cảnh 3D dự án;
• Thiết kế Quy hoạch;
• Thiết kế Phối cảnh BĐS;
• Thiết kế 3D BĐS;
• Làm phim 3D, phim kiến trúc;
• Các dịch vụ liên quan đến Marketing, Truyền thông, Bán hàng cho Doanh nghiệp.
Address: 2nd Floor, Building 06 Tran Phu Street, Hai Chau District, Da Nang City
Website: www.archiheart.vn
Website: www.phoicanh3d.com – www.phoicanhduan.com – www.thietkebds.com
Facebook: Archiheart Studio
Facebook: Phoicanh3D.com – Thiết kế 3D & Vẽ Phối cảnh Dự án
Youtube: www.youtube.com/archiheartstudio
Email: info@archiheart.vn – sales@archiheart.vn